煤改電簡介
“煤改電”,顧名思義,是將燃煤鍋爐改成用電的鍋爐,常應用于居民供暖,從而替代傳統的煤炭能源,減少污染。
用電供暖的設備包括電鍋爐、空氣源熱泵和水源熱泵,以及幾種方式的組合。
電采暖集快捷、便利、清潔、安全、等點于一身,是城市居民用能方式的一種有效途徑,從而提居民生活量。
煤改電的優點:
1、可以進一步調整化城鄉供熱能源結構,有益于整體節能。
2、可以減少燃煤鍋爐污染,減少霧霾的生成幾率。
3、可以緩解電力過剩,支持清潔發展
4、專為有峰—谷電價政策的地區設計,以型材料為載體,夜間通電加熱的同時,儲存熱量,在白天電加熱器斷電的狀態下釋放熱能,在達到采暖目的的同時,節省用電。
煤改電方式
1、電鍋爐替代燃煤鍋爐
電鍋爐也稱電加熱鍋爐、電熱鍋爐,它是以電力為能源并將其轉化成為熱能,從而經過鍋爐轉換,向外輸出有一定熱能的蒸汽、溫水或有機熱載體的鍋爐設備。通常要結合儲能設施使用,在電價谷時用電制熱并儲存起來,待白天電價峰值時釋放出來使用。會降供暖成本。
適用于電價便宜,冬季較冷的地區使用。
2、空氣源熱泵替代燃煤鍋爐
A.空氣能(源)熱泵是由電動機驅動的,利用空氣中的熱量作為溫熱源,經過傳統空調器中的冷凝器或蒸發器進行熱交換,然通過循環系統,提取或釋放熱能。
B.空氣能(源)熱泵使用1份電能,同時從室外空氣中獲取2份以上免費的空氣能(源),能生產3份以上的熱能,環保,相比電采暖每月節省75%的電費,為用戶省下如此可觀的電費
C.適用于冬季溫度不于零下5度的地區供暖、提供生活用水。
3、水源熱泵代替燃煤鍋爐
水源熱泵是利用地球水所儲藏的太陽能資源作為冷、熱源,進行轉換的空調。
它以地表水為冷熱源,向其放出熱量或吸收熱量,不消耗水資源,不會對其造成污染;省去了鍋爐房及附屬煤場、儲油房、冷卻塔等設施,機房面積小于常規空調系統,節省建筑空間,也有利于建筑的美觀。適用于周邊有量水源供利用的沿海地區。
4、熱泵和電鍋爐相結合的方式
該組合適用于以熱泵主為,以電鍋爐為輔。常規情況下,熱泵的能效比電鍋爐,但當環境溫度過導致熱泵效率過時,啟動電鍋爐輔助。
工程案例1
湖北某學空氣源熱泵供熱水
一、工程簡介
以湖北某學校2棟6層學生宿舍,該宿舍為建,該宿舍每層約入住有320人,每層設有兩個公共浴室,熱泵在樓頂加熱冷水,儲存在保溫水箱,熱水經管道進入每層浴室,以供使用。
二、工藝選擇
空氣源熱泵機組:由8臺空氣源熱泵并聯向系統提供熱源,每臺空氣源熱泵機組可獨立開啟或關閉并有獨立的進水和出水控制閥門,便于機組的維護和管理。空氣源熱泵設備有自動和手動兩種控制方式,同時設有切換開關,當切換開關置于“手動”位置時,只能用人工手動啟停熱泵設備。當切換開關置于“自動”位置時,熱泵由溫控儀自動控制啟停,當水箱水溫達到設定溫度時,停止給熱泵設備供電,反之則保持供電。
三、經濟性分析
|
序號 |
項目 |
參數 |
|
1 |
能效比 |
4 |
|
2 |
每噸水需電量(度) |
11.63 |
|
3 |
電費單價(元/度) |
0.595 |
|
4 |
日設計量(t) |
76.8 |
|
5 |
運行天婁 |
293 |
|
6 |
日用水量系數 |
0.6 |
|
7 |
單位水費(元/噸) |
2.32 |
全年電費為:76.8×0.6×293×11.63×0.595=9.3428萬元
全年水費為:76.8×0.6×293×2.32=3.13萬元
平均全年管理費用為:76.8×0.6×293×5=6.75萬元
注:單位管理費5元/噸。
全年維修費(含不可預見費)為8.00萬元。
綜上可知,全年運行總費用為:9.3428+3.13+6.75+8.00=27.228萬元
四、小結
與其他集中熱水供應系統相比,空氣源熱泵系統結構緊湊,工程量少,占地面積小,安裝簡便,不需設專用機房。智能化管理,可實現全機系統自動化運行,不需專人值守,降了項目工程及管理費用。
工程案例2
某金融中心冬季空調供暖設計計算熱負荷峰值為5044kW:1~6層(裙房)973kW,8~20層(區)1331kW,22~34層(中區)1331kW,36~46層(區)1409kW。
考慮到當時的市政能源條件(無集中供熱與燃氣源,電力充足、供電政策支持和電價惠)和初投資與運行費用的效益比以及機房安全條件。
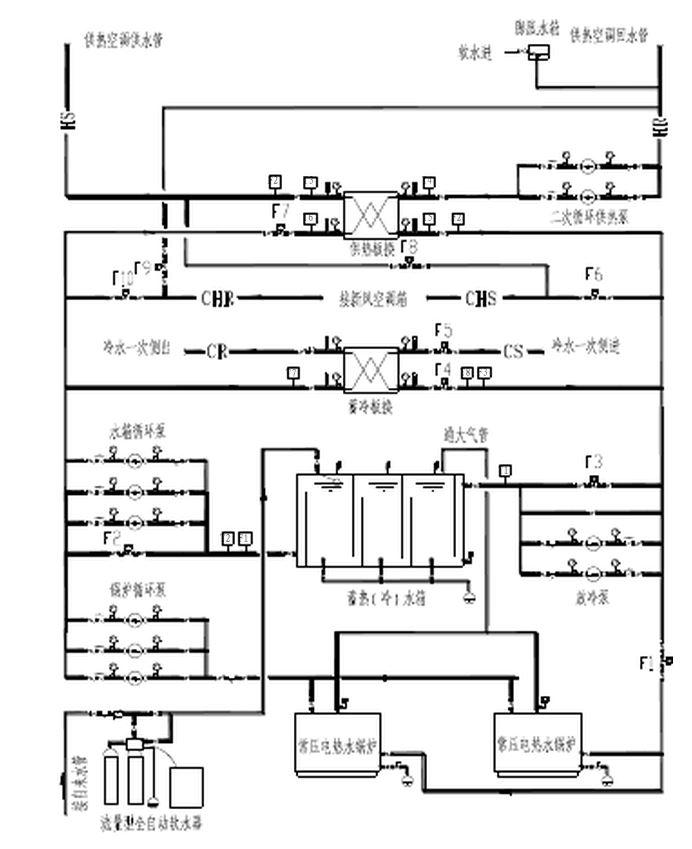
本工程采用常壓型電熱水鍋爐生產的蓄熱水作為空調供暖熱源,采用常溫全量(不考慮不可預見系數)蓄熱模式、并聯流程,并根據樓層分布情況分設4套系統,機房分別布置于7層,21層,35層,PH1設備層。每套系統均設有2臺675kW的電鍋爐、1個有效容積為200m3的蓄熱水箱,其設計蓄熱水溫為45~90℃,蓄熱量為10465kWh;考慮10%的余量,聯合供熱(板式換熱器的)總供熱能力為1600kW;板式換熱器一次側的設計進、出水溫度為55℃/45℃、二次側(空調末端設備)的設計供、回水溫度為50℃/40℃。該水蓄熱系統夏季可兼作蓄冷用,其蓄熱水箱轉變為蓄冷水箱,主要用于風空調箱的供冷。
工藝流程
系統運行模式控制表
該系統運行較為靈活,可以根據不同的需求情況采用不同的供暖方式,同時電鍋爐更為清潔環保。
- 光伏電站解決方案2016-02-22
- 循環水泵節能的幾種常見方法2018-06-20
- 水泵節能改造的主要方法2018-06-20
- 冷熱電三聯供系統2015-12-07
- 節能水泵的優點2016-03-29
熱門資訊

- 章建華:深入學習貫徹習近平總書記重要講話精神 以更大力度推動我國新能源高質量發展習近平總書記在中共中央政治局就新能源技術與我國的能...







